松戸市小金原第26 1号棟
- お気に入り
- mail_outline 物件へのお問い合わせ
庭先5.4m!!
新築戸建
- 価格
- 3,588 万円 pollローンシミュレーション
- 所在地
- 千葉県松戸市小金原5丁目
- 交通
-
千代田・常磐緩行線「北小金」 バス10分 「小金原五丁目」バス停徒歩8分
庭先5.4m!!
全2棟!整形地!
■カースペース並列2台可
■制震装置SAFE365で地震の揺れを吸収するお家
・地震7の地震を最大67%低減!
・耐力壁として認定を受けております
国土交通大臣認定番号:FRMー0463~0465
■住宅性能評価付き
・住まいの性能が等級や数値で表示されているので専門家でなくても分かりやすい
・国土交通大臣の登録を受けた第三者機関の評価員が
公平に性能をチェックしてくれているから安心
・万一のトラブルにも専門機関(国土交通大臣が指定する「指定住宅紛争処理機関」)が対応してくれる (「設計」・「建築」、両評価書を取得している場合)
全2棟!整形地!
■カースペース並列2台可
■制震装置SAFE365で地震の揺れを吸収するお家
・地震7の地震を最大67%低減!
・耐力壁として認定を受けております
国土交通大臣認定番号:FRMー0463~0465
■住宅性能評価付き
・住まいの性能が等級や数値で表示されているので専門家でなくても分かりやすい
・国土交通大臣の登録を受けた第三者機関の評価員が
公平に性能をチェックしてくれているから安心
・万一のトラブルにも専門機関(国土交通大臣が指定する「指定住宅紛争処理機関」)が対応してくれる (「設計」・「建築」、両評価書を取得している場合)
- 担当
- 大髙 陽子
- 営業時間
- 10:00~19:00
- 定休日
- 水曜日
全体区画図
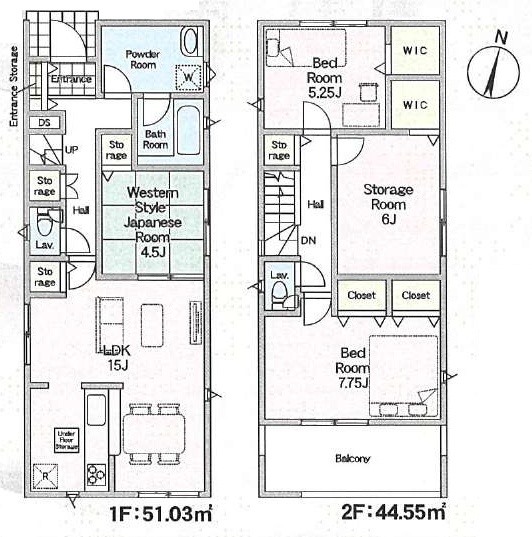
間取
松戸市の新築戸建松戸市小金原第26 1号棟をご覧いただきありがとうございます。ワイワイハウジング不動産売買仲介情報サイトでは、 松戸市小金原第26 1号棟の新築戸建以外にも、 松戸市のマンション、新築戸建、中古戸建、土地など不動産情報を多数ご紹介しております。流山市・松戸市を中心に近隣市内の一戸建て物件をスタッフが毎日更新!ただ今、仲介手数料無料キャンペーン中!女性スタッフ多数在籍中ですので、お気軽にお問合せ下さい。流山市・松戸市で不動産の購入・売却をお考えの方はワイワイハウジングにお任せください!